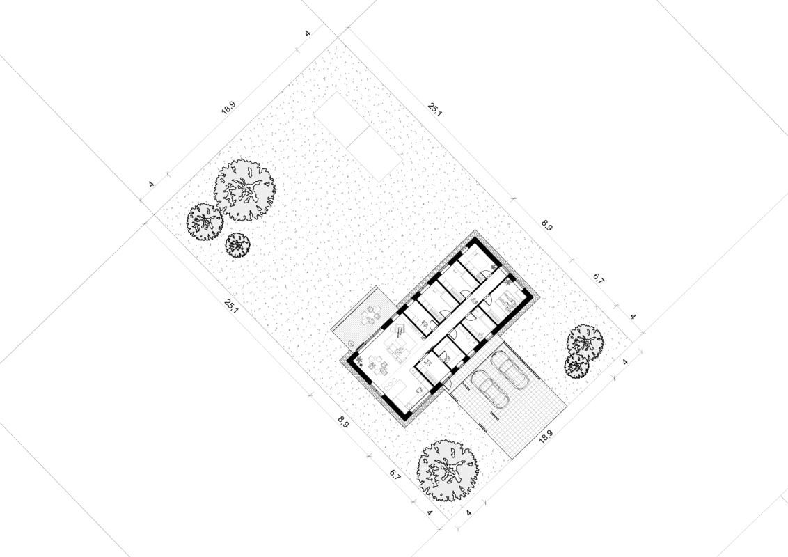
Piņķi

lokācija - Piņķi

tips - dzīvojamā māja

darbs - koncepcija

gads - 2021

platība - 120 m2

autori - Jānis Lielmanis

 

arhitekts jānis lielmanis

Built with Berta.me