Šalkas

lokācija - Šalkas Bērzciemā

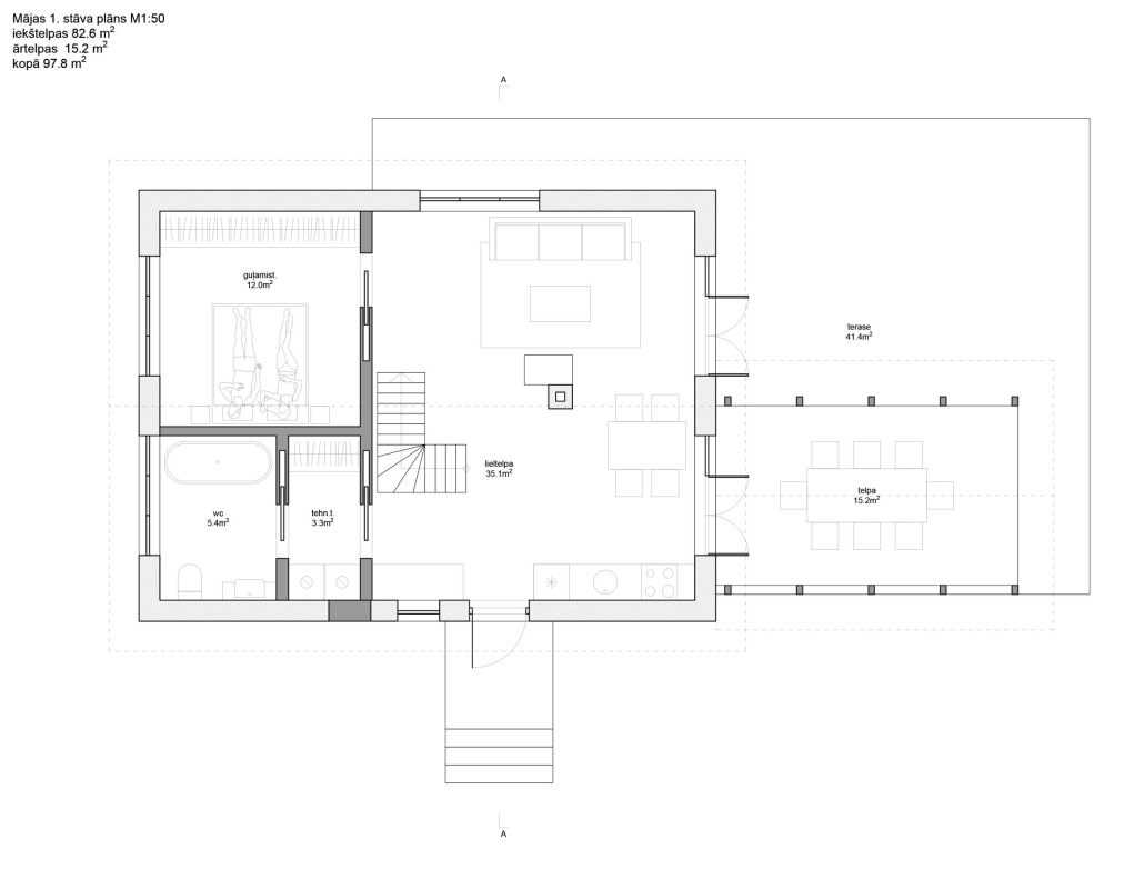
tips - dzīvojamā māja un palīgēkas (pirts un šķūnis)

darbs - koncepcija + būvprojekts

gads - 2024 - procesā

platība - 100 + 30 +20 m2

autori - Jānis Lielmanis

vizualizācijas - Valts Urbergs

arhitekts jānis lielmanis

Built with Berta.me